Exhibition Area: 10,000 square feet

Client: Centro Criollo de Ciencias y Tecnologia

Location: Caguas, Puerto Rico

Completion Date: December 2009

Sustaining Puerto Rico is the main exhibition at the newly created Centro Criollo de Ciencia y Tecnologia in Caguas. This highly interactive exhibition examines the island and its inhabitants amidst a broader global story. The primary focus will be on sustainability and the dynamics of systems - from each individual, to the island itself and its place in the world: our bodies, our island, our planet.

< >

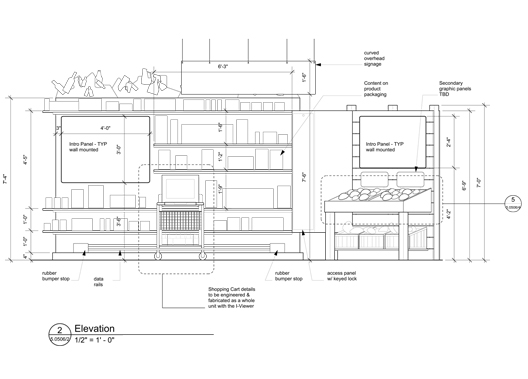
Familiar consumer products line the shelves of this Supermarket; next to the shelves are produce bins. Shopping cart has a screen that "reads" the products and provides the visitor/shopper information on the product's carbon footprint.

Photo Credits: Dennis Finnin, Carol Huang & Tony Morales